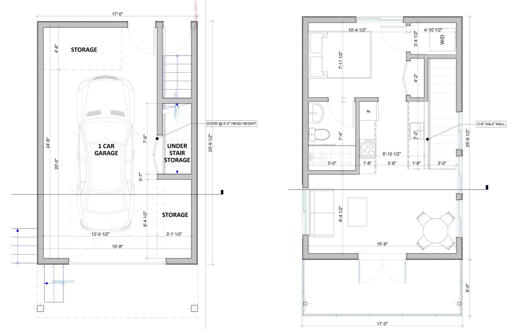
THE FALKNER ADU
2024
LOCATION: North Portland, OR
CLIENT/COMPANY: The Falkners
TYPE: Accessory Dwelling Unit
SIZE: 900 sq ft
PERSONAL CONTRIBUTION: Zoning and Code Analysis, Schematic Design, 3D Modeling and Renders
2024
LOCATION: North Portland, OR
CLIENT/COMPANY: The Falkners
TYPE: Accessory Dwelling Unit
SIZE: 900 sq ft
PERSONAL CONTRIBUTION: Zoning and Code Analysis, Schematic Design, 3D Modeling and Renders