ARLINGTON TOWERS

2023

LOCATION: St. Petersburg, FL

CLIENT/COMPANY: Under contract with AHA Studio

TYPE: Mixed-Use Commercial

SIZE: 145,000 sq ft

PERSONAL CONTRIBUTION: Zoning and Code Analysis, Schematic Design, Presenting Site Analysis to City, 3D Modeling and Renders

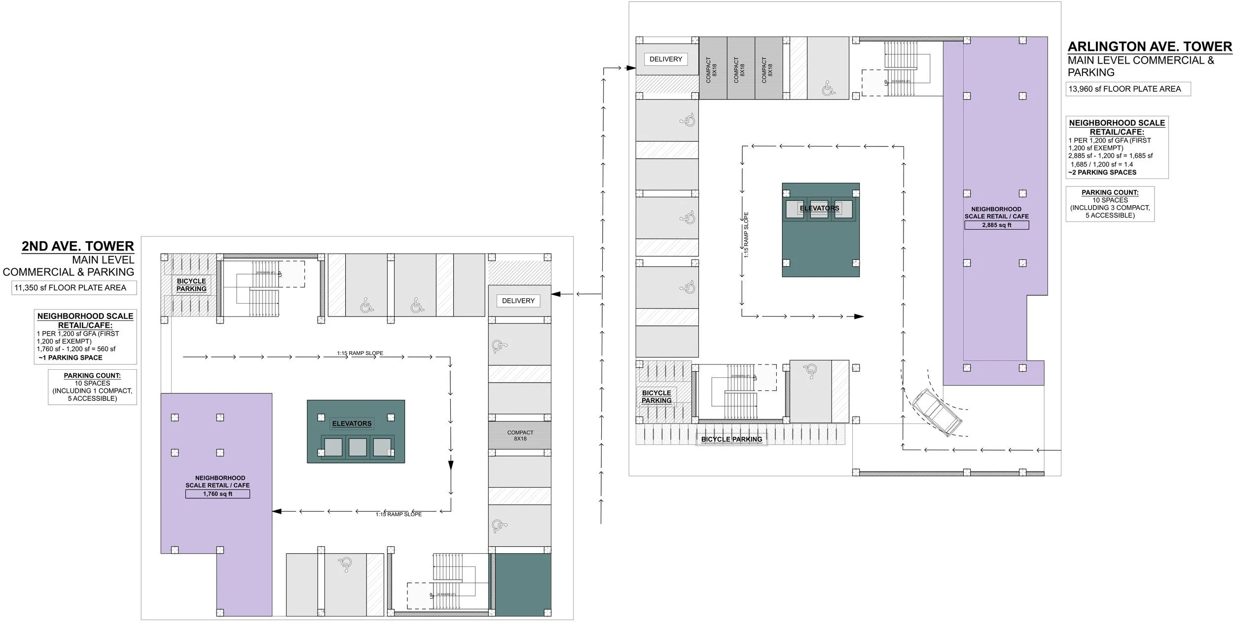
An exciting start to a multi-use building in the heart of St. Pete, Florida. I was tasked to design two parallel towers with the first floor as a neighborhood-scale cafe, restaurant, or retail, 5 floors of parking, two middle floors of office space, and 5-7 floors of market rate and low income residential apartments and amenities. It was apparent and shocking how much local zoning codes can completely shape a building. With plentiful space, but still down to the 1/4”. This project was submitted to the city for site plan review, followed by a meeting with the city to address our questions and concerns, and hear their feedback.

I completed all occupancy load, life safety, parking, openings and plumbing calculations based on the design program set forth by the owner. The volume and plans synthesize the results from those calculations, the Florida Building Code, and the St Pete zoning code.

MAIN LEVEL FLOOR PLAN DIAGRAM

OFFICE LEVEL FLOOR PLAN DIAGRAM

RESIDENTIAL LEVEL FLOOR PLAN DIAGRAM

FRONT ELEVATION

SIDE ELEVATION

Next
Next

5262 CENTRAL